Home
Workshops
Mass
Program
Hotel
Contact
Admin | Sign in
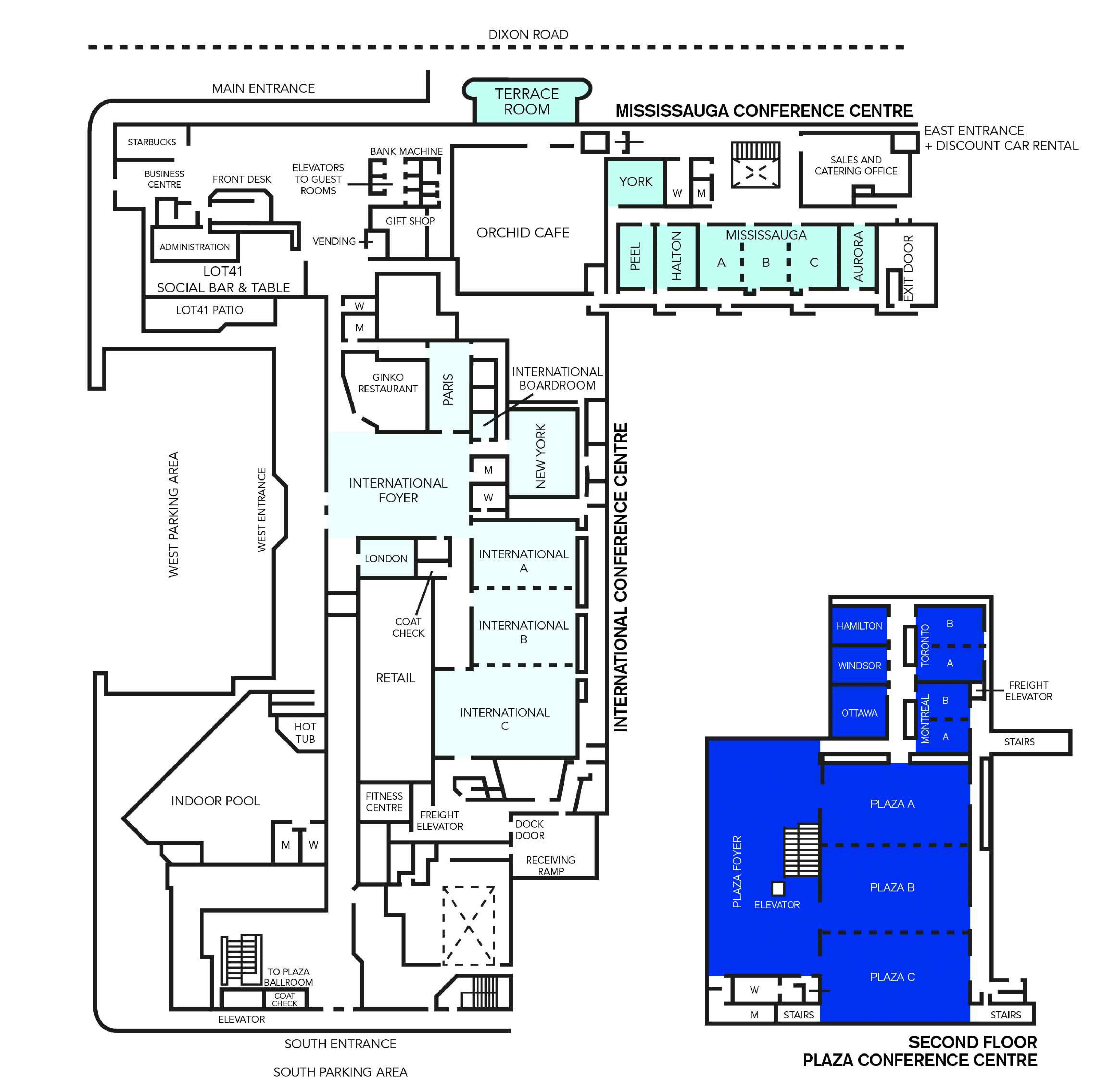
Floor Plan